概要・特長
仕様
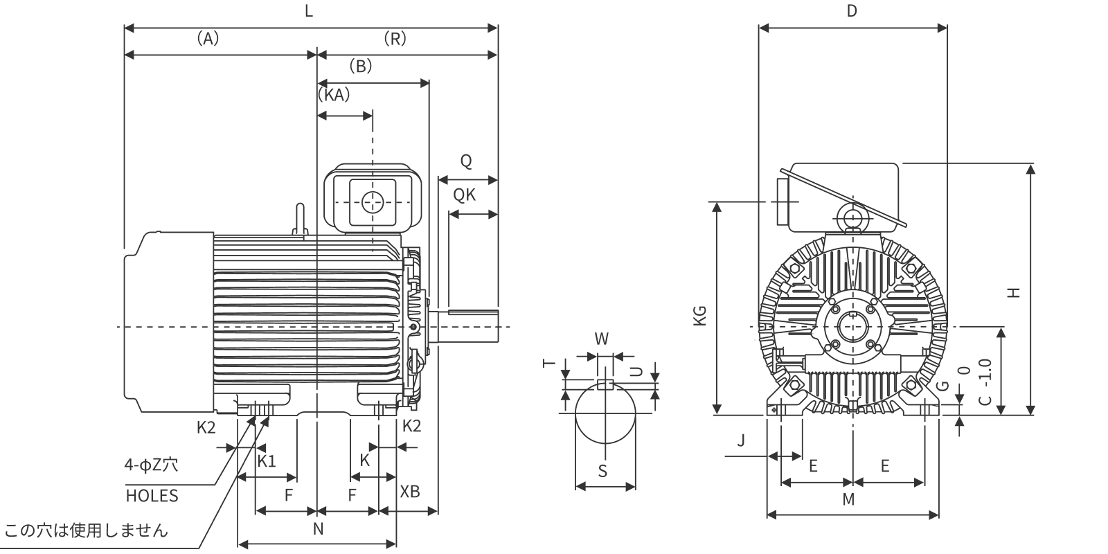
外形図
-
250SD、280SD
-
250MD、280MD
-
280L
-
315HA、355HA
単位:mm
| 枠番号 | 極数 | 結合方式 | 寸法 | 軸端寸法 | ||||||||||||||||||||||||||
|---|---|---|---|---|---|---|---|---|---|---|---|---|---|---|---|---|---|---|---|---|---|---|---|---|---|---|---|---|---|---|
| A | B | C | D | E | F | G | H | KA | KG | J | K | K1 | K2 | K3 | L | M | N | XB | Z | Q | QK | R | S | T | U | W | QR | |||
| 250SD | 2 | - | 564.5 | 298 | 250 | 535 | 203 | 155.5 | 30 | 712 | 138.5 | 603 | 100 | 130 | 168 | 88 | 50 | 998 | 486 | 449 | 168 | 24 | 110 | 90 | 433.5 | φ55m6 | 10 | 6 | 16 | - |
| 4~ | 1,028 | 140 | 110 | 463.5 | φ75m6 | 12 | 7.5 | 20 | ||||||||||||||||||||||
| 280SD | 2 | - | 622 | 348.5 | 280 | 587 | 228.5 | 184 | 30 | 782 | 185 | 673 | 110 | 130 | 181 | 91 | 40 | 1,106 | 560 | 499 | 190 | 24 | 110 | 90 | 484 | φ55m6 | 10 | 6 | 16 | - |
| 4~ | 1,166 | 170 | 140 | 544 | φ85m6 | 14 | 9 | 22 | ||||||||||||||||||||||
| 250MD | 2 | - | 545.5 | 317 | 250 | 535 | 203 | 174.5 | 30 | 712 | 157.5 | 603 | 100 | 130 | 168 | 50 | - | 998 | 486 | 449 | 168 | 24 | 110 | 90 | 452.5 | φ55m6 | 10 | 6 | 16 | - |
| 4~ | 1,028 | 140 | 110 | 482.5 | φ75m6 | 12 | 7.5 | 20 | ||||||||||||||||||||||
| 280MD | 2 | - | 596.5 | 374 | 280 | 587 | 228.5 | 209.5 | 30 | 782 | 210.5 | 673 | 110 | 130 | 181 | 40 | - | 1,106 | 560 | 499 | 190 | 24 | 110 | 90 | 509.5 | φ55m6 | 10 | 6 | 16 | - |
| 4~ | 1,166 | 170 | 140 | 569.5 | φ85m6 | 14 | 9 | 22 | ||||||||||||||||||||||
| 280L | 2 | 直結 | 886.5 | 393 | 280 | 640 | 228.5 | 228.5 | 30 | 822 | 214.5 | 713 | 110 | 160 | 160 | 75 | - | 1,415 | 560 | 607 | 190 | 24 | 110 | 90 | 528.5 | φ55m6 | 10 | 6 | 16 | - |
| 4~ | 828.5 | 1,417 | 170 | 140 | 588.5 | φ85m6 | 14 | 9 | 22 | |||||||||||||||||||||
| ベルト | 1,457 | 210 | 170 | 628.5 | φ110m6 | 16 | 10 | 28 | ||||||||||||||||||||||
| 315HA | 2 | 直結 | 976 | 534.5 | 315 | 858 | 254 | 355 | 35 | 1,045 | 282 | 890 | 130 | 165 | 428 | 70 | 80 | 1,687 | 636 | 860 | 216 | 28 | 140 | 110 | 711 | φ65m6 | 11 | 7 | 18 | R1 |
| 4~ | 916 | 1,657 | 170 | 140 | 741 | φ95m6 | 14 | 9 | 25 | |||||||||||||||||||||
| ベルト | 1,697 | 210 | 170 | 781 | φ125m6 | 18 | 11 | 32 | ||||||||||||||||||||||
| 355HA | 2 | 直結 | 1,012 | 667.5 | 355 | 958 | 305 | 450 | 40 | 1,135 | 415 | 980 | 160 | 190 | 460 | 80 | 80 | 1,856 | 710 | 1,060 | 254 | 28 | 140 | 110 | 844 | φ75m6 | 12 | 7.5 | 20 | R1 |
| 4~ | 993 | 1,907 | 210 | 160 | 914 | φ110m6 | 16 | 10 | 28 | |||||||||||||||||||||
| ベルト | 1,947 | 250 | 200 | 954 | φ130m6 | 18 | 11 | 32 | ||||||||||||||||||||||
- ※当社標準構造の寸法です






